St. Keverne, Grade II listed barn for Auction

2 bedroom Barn Conversion for sale

£250,000

  • 2 bedroom

Key Features

  • For Sale By National Timed Auction, Bidding Opens 12/01/26 at 13:00 and Closes 24hrs Later
  • Grade II Listed
  • Part Completed Barn Conversion
  • Planning Permission for Rear Extension
  • Two Double Bedrooms
  • Freehold Tenure
  • EPC- 1- G
  • Council Tax Bands- A & A

Description

Guide Price £250,000 (plus fees). For Sale via Online Unconditional Auction starting on 11/02/26 at 11:00am. A Grade II Listed barn conversion located in a rural setting. Legal pack available to download free of charge from The Auction House website.

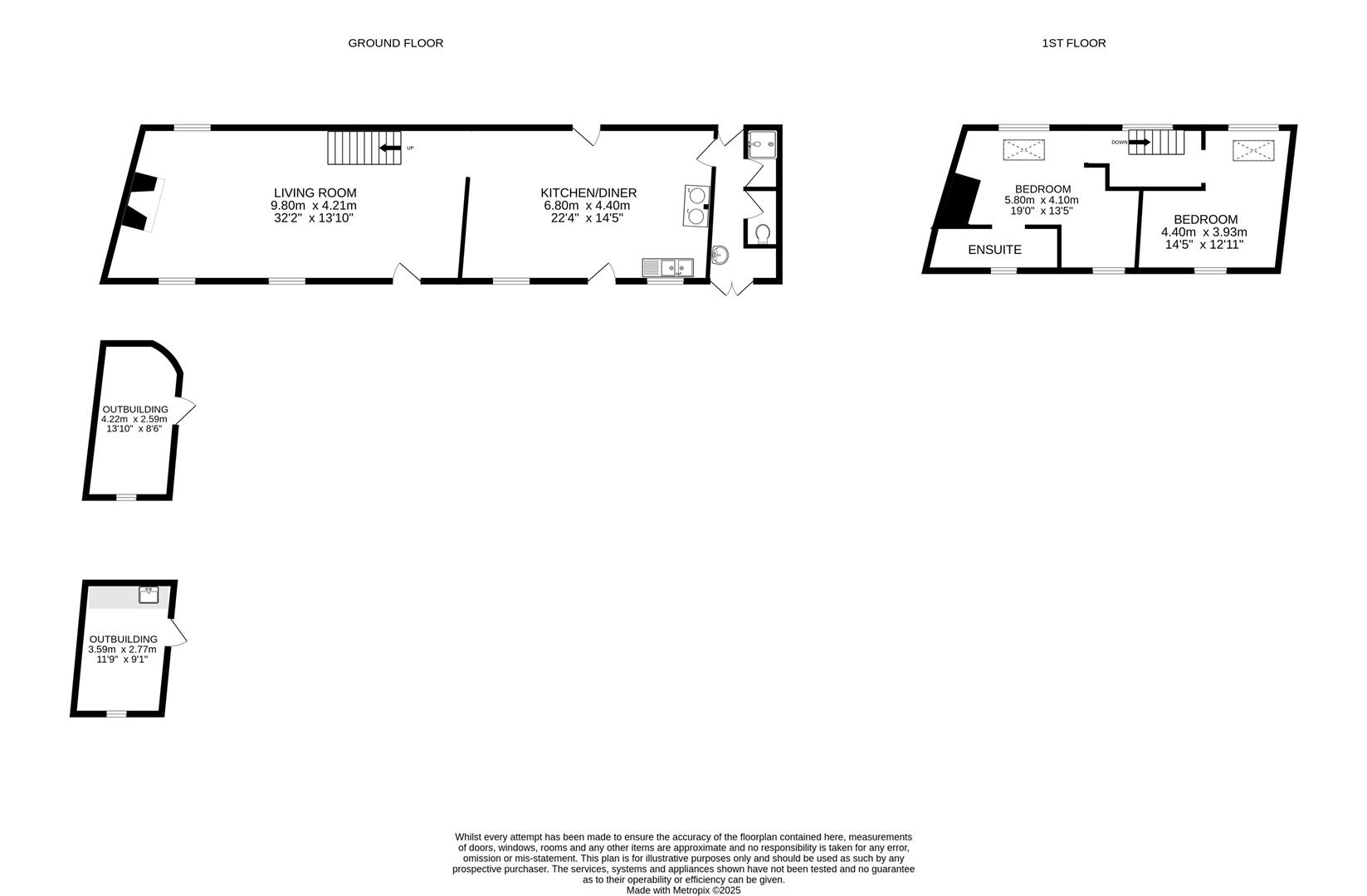
Located in a countryside setting on the outskirts of Porthallow and St Keverne, this part-completed barn conversion sits close to the beach as well as primary and secondary schools. Once finished, the accommodation will comprise on the ground floor: a living room, kitchen/diner, downstairs shower room and a separate W.C. On the first floor there are two double bedrooms, with the master benefiting from en-suite facilities. Externally, the property offers a rear garden of approximately 0.5 acres. Parking is available to the rear for approximately 4–5 vehicles. The site also includes two outbuildings, one of which has historically been used as an Airbnb, along with a storage container. There is planning permission in place for a rear extension which when built will offer a further bedroom and a shower room under planning reference PA23/08618.

AUCTIONEERS NOTE

The property has the following planning consents PA23/08619, PA23/08618 and PA25/00486. Further information with regards to these planning consents are available on the Cornwall council website.

The seller has part completed the barn conversion with the following works complete -

A new Spanish slate roof (signed off) in 2023.
Full restoration of cob walls, lime rendering and pointing both internal and external 2023-25.
New treatment plant installed in 2023.
Underfloor heating pipework (wet) installed throughout ground floor in 2024.
New slate kitchen floor laid in 2024.
Dig out is completed for rear extension.
New hardwood double glazed doors and windows downstairs (signed off)
All woodwork has been treated throughout.
Outbuilding with potential for Airbnb.
A large well in the back garden with potential as an alternative water source subject to water testing.
Build materials included with auction - Metal guttering for entire extension, structural timbers of various lengths, various electrical cabling, sockets etc, NHL2 - 8 bags for cob scratch coat upstairs, Large double glazed glass and larch lintel for extension between barn and outbuilding, a new cast iron roll top bath and shower.

ACCOMMODATION

Living Room - 32"2' x 13"10'
Kitchen/Dining Room - 22"4' x 14"5'
Downstairs W.C
Shower Room
Master Bedroom - 19" x 13"5'
En-Suite
Bedroom Two - 14"5' x 12"11'

Outbuilding - 13"10' x 8"6'
Outbuilding (Former Airbnb) - 11"9' x 9"1'

FULL DETAILS

Photographs, Dimensions, Floor Plans and Area Measurements (when available) are included within our full details online on our website. All published information is to aid identification of the property and is not necessarily to scale.

VIEWINGS

Please telephone Auction House South West on 03456 461361 to request a viewing.

NOTICE TO BIDDER

Please be aware that if your bid is successful on auction day the exchange of contracts will happen immediately after the auction.

Tenure

Freehold

EPC Rating

EPC Rating G1

Important Notice to Prospective Buyers

We draw your attention to the Special Conditions of Sale within the Legal Pack, referring to other charges in addition to the purchase price which may become payable. Such costs may include Search Fees, reimbursement of Sellers costs and Legal Fees, and Transfer Fees amongst others.

Buyers Premium

Buyers Premium - £600 inc VAT

Administration Charge

Administration Charge is a non-refundable £1,200 inc VAT payable on the fall of the virtual gavel.

Disbursements

Please see the legal pack for any disbursements listed that may become payable by the purchaser on completion.

Note

1. MONEY LAUNDERING REGULATIONS: Intending purchasers will be asked to produce identification documentation at a later stage and we would ask for your co-operation in order that there will be no delay in agreeing the sale.
2. General : While we endeavour to make our sales particulars fair, accurate and reliable, they are only a general guide to the property and, accordingly, if there is any point which is of particular importance to you, please contact the office and we will be pleased to check the position for you, especially if you are contemplating travelling some distance to view the property.
3. Measurements: These approximate room sizes are only intended as general guidance. You must verify the dimensions carefully before ordering carpets or any built-in furniture.
4. Services: Please note we have not tested the services or any of the equipment or appliances in this property, accordingly we strongly advise prospective buyers to commission their own survey or service reports before finalising their offer to purchase.
5. THESE PARTICULARS ARE ISSUED IN GOOD FAITH BUT DO NOT CONSTITUTE REPRESENTATIONS OF FACT OR FORM PART OF ANY OFFER OR CONTRACT. THE MATTERS REFERRED TO IN THESE PARTICULARS SHOULD BE INDEPENDENTLY VERIFIED BY PROSPECTIVE BUYERS OR TENANTS. NEITHER AUCTION HOUSE NOR ANY OF ITS EMPLOYEES OR AGENTS HAS ANY AUTHORITY TO MAKE OR GIVE ANY REPRESENTATION OR WARRANTY WHATEVER IN RELATION TO THIS PROPERTY.


Location


Floorplan

Floorplan

EPC

EPC for St. Keverne, Grade II listed barn for Auction

Similar Properties

The Lizard, Cottage with sea views and no chain
For Sale

The Lizard, Cottage with sea views and no chain

2 Bed Cottage For Sale
Guide price Guide Price £250,000
Ruan Minor, Well presented bungalow
For Sale

Ruan Minor, Well presented bungalow

1 Bed Terraced bungalow For Sale
Guide price Guide Price £179,950
Mullion, Immaculate bungalow
For Sale

Mullion, Immaculate bungalow

3 Bed Bungalow For Sale
Guide price Guide Price £525,000