Tucked away home close to the town, Helston

3 bedroom Character Property Sold STC

£300,000

  • 3 bedroom
  • 2 bathroom
  • 2 reception

Key Features

  • SPACIOUS AND VERSATILE GRADE II LISTED 3 BEDROOM TOWNHOUSE
  • TWO BATHROOMS
  • ROOFTOP GARDEN
  • DOUBLE GARAGE
  • TUCKED AWAY LOCATION
  • CLOSE TO THE TOWN CENTRE
  • EPC EXEMPT
  • COUNCIL TAX BAND B
  • FREEHOLD TENURE

Description

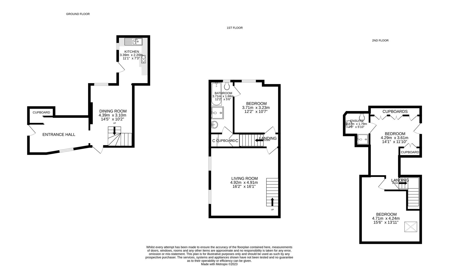
Step inside this captivating Grade II listed Georgian home, tucked away in a peaceful mews just off elegant Cross Street offering the perfect home to be at the heart of Flora Day. Set across three spacious floors, this unique two/three bedroom, two bathroom townhouse offers generous and versatile accommodation, beautifully blending character with practicality.

The ground floor provides a welcoming choice of living areas, perfect for relaxing or entertaining. The kitchen opens to a dining room, creating a sociable space for family meals or dinner parties, while the day room offers flexibility as a home office, snug, or quiet retreat.

The first floor enjoys high ceilings and twin sash windows that fill the room with natural light. The luxurious master suite is a true haven, complete with a dressing area and an elegant en-suite featuring a claw-footed bath and separate shower.

The top floor hosts a bedroom and flexible bedroom/additional reception room which benefits from having its own en-suite shower room and direct access to the standout feature of this property: a stunning rooftop garden. Bathed in sunshine and enjoying far reaching views across the townscape and countryside, this secluded outdoor oasis is perfect for morning coffee, evening drinks, or summer gatherings beneath the backdrop of St Michael’s Church.

Completing the package is the rare benefit of a large garage providing secure storage and convenience right in the heart of town.

Offers In Excess Of £300,000

Location

This property is situated on possibly Helston's oldest street, certainly one of the most historic parts of this ancient market town, showcasing graceful Georgian architecture. Just moments from the town centre and a stones throw from the St Michael's Church. The surrounding nearby areas boast many Primary Schools with the nearest Secondary Schools being in Helston and Mullion. The town has a leisure centre with a swimming pool and large gym and many amenity areas including the boating lake and the beautiful National Trust Penrose Woods. This property is a short drive from the stunning Lizard Peninsula and within a 10 minute drive of the thriving harbour and coastline at Porthleven. You can also cycle through Penrose woods to Porthleven which takes around 20 minutes. The city of Truro and the towns of Falmouth, Penzance and Hayle are all within a 20 to 30 minute drive.

Outside

The outside space is a real highlight, the rooftop garden is utterly secluded offering a sun drenched area in which to relax and entertain whilst enjoying townscape and rural views.

Garage

A huge asset is the large double garage/workshop with integral access to the property.

Flying Freehold

Please be aware that the property is the subject of a flying freehold.

Parking

Our client has advised us that the property enjoys a right to park one vehicle in front of the garage.

Agents Note 1

Our client has informed us that the entrance lobby is owned by Mews House and Mews Cottage has right of access to their property. The maintenance costs will be split 50/50 between the two properties.

Agents Note 2

This property enjoys access across the courtyard of neighbouring Mews Cottage for emergency use only.

Services

Mains electricity, water and drainage. Mains gas central heating.

Council Tax Band- B

What3Words

///habits.suckle.submit

Anti Money Laundering Regulations – Purchasers

It is a legal requirement that we receive verified ID from all buyers before a sale can be instructed. We will inform you of the process once your offer has been accepted.

Proof of Finances

Before agreeing a sale, we will require proof of your financial ability to purchase. We will inform you of what we require prior to agreeing a sale.

Broadband & Mobile Phone Coverage

To check the broadband coverage for this property please visit https://www.openreach.com/fibre-broadband. To check mobile phone coverage please visit https://checker.ofcom.org.uk/

Agents Note


Location


Floorplan

Floorplan

EPC


Similar Properties

Godolphin Cross, Modernised detached bungalow
For Sale

Godolphin Cross, Modernised detached bungalow

3 Bed Detached bungalow For Sale
Guide price Guide Price £385,000
Helston, Three bed home with great potential
For Sale

Helston, Three bed home with great potential

3 Bed End of terrace house For Sale
Guide price £279,800
Godolphin Cross, Tucked away two bed cottage
For Sale

Godolphin Cross, Tucked away two bed cottage

2 Bed Cottage For Sale
Guide price Guide Price £250,000