Nr St Erth, Farmhouse, Annexe and Outbuilding

4 bedroom Detached house for sale

£999,950

  • 4 bedroom
  • 1 bathroom
  • 1 reception

Key Features

  • DETACHED FOUR BEDROOM FARMHOUSE
  • SEPARATE DETACHED TWO BEDROOM ANNEXE
  • LARGE GARDENS
  • LOTS OF PARKING
  • BARN WITH LAPSED PLANNING PERMISSION
  • RURAL LOCATION ON THE OUTSKIRTS OF ST ERTH
  • FREEHOLD TENURE
  • COUNCIL TAX BAND - D
  • EPC- 28- F

Description

Set in a peaceful rural position with breathtaking far reaching countryside views, this charming detached farmhouse offers a rare opportunity to enjoy space, tranquillity and versatility in a truly special setting. The main house features spacious accommodation including a large kitchen/lounge/diner, conservatory and four bedrooms (one on the ground floor).

Accompanying the main home is a generous, fully self-contained two bedroom annexe which can be used as a holiday let or ancillary accommodation to the main house. In addition, there is a stone barn which previously had permission in principle for conversion into another annexe, offering exciting potential for further development.

Outside, the property boasts ample parking, a former tennis court now transformed into a productive vegetable garden, and mature grounds with room to roam – perfect for those seeking a more self-sufficient lifestyle. Despite its wonderfully private location, the property remains conveniently close to St Erth and Hayle, with excellent transport links and sandy beaches just a short drive away.

This is a rare chance to secure a substantial and flexible rural property with huge scope and endless lifestyle appeal – early viewing is highly recommended.

Guide Price - £999,950

Location

This property is positioned near the end of a no through lane with just one property close by. The nearby village of St Erth is a sought after village which has a lovely pub, village store, children's play park, church, and a well regarded school and nursery. There are some pretty walks along the St Erth River to enjoy, with a few fishing lakes locally. St Ives, Hayle, Penzance and the A30 are all within easy reach. Transport links are great too with a bus stop at the end of the road and a train station close by which serves the nearby town of St Ives Bay as well as Truro and London, Paddington.

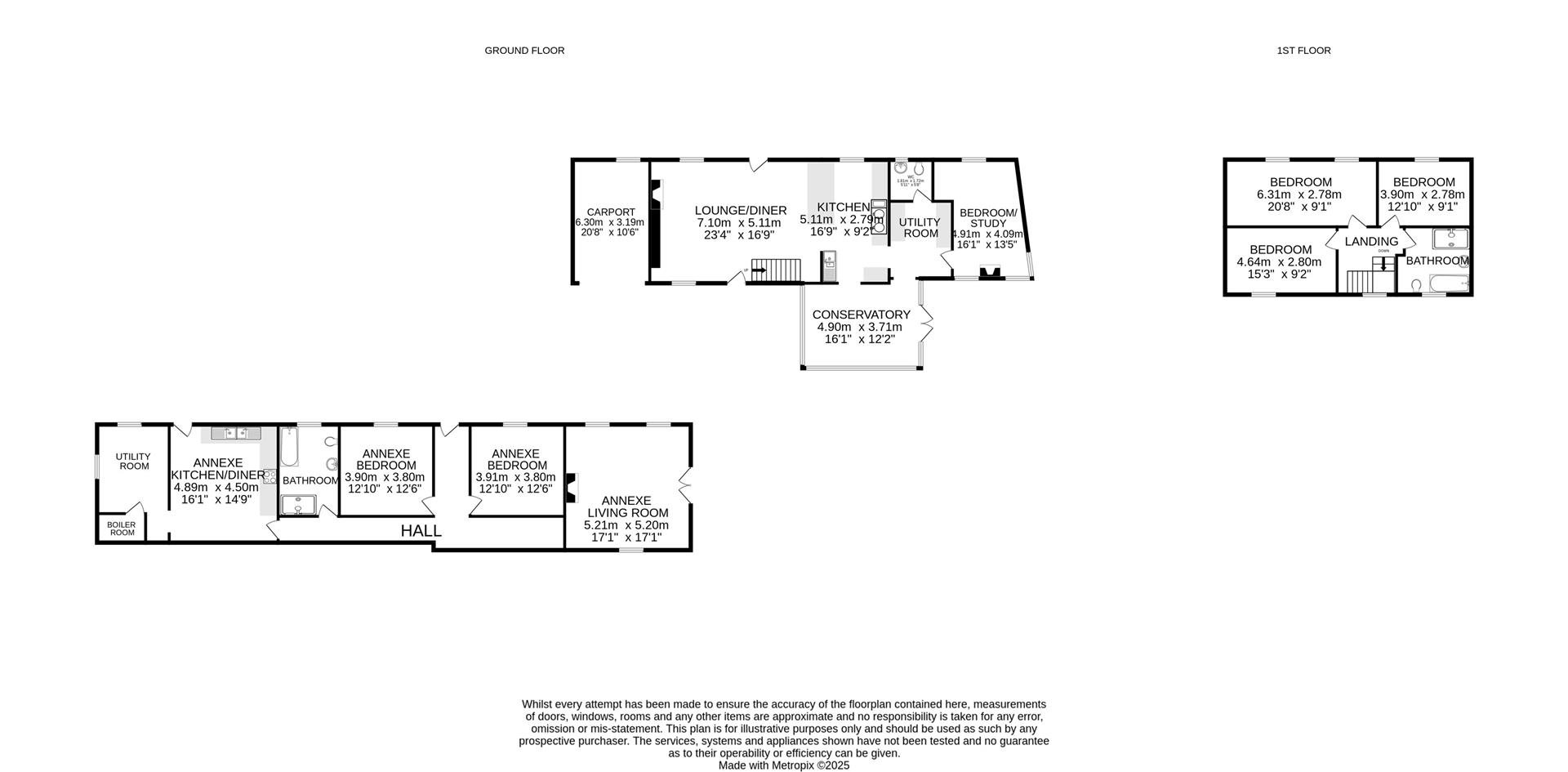
Accommodation

MAIN HOUSE
Lounge/Dining Room/Kitchen
Bedroom 4
Conservatory
Utility Room
Cloakroom
First Floor Landing
Bedroom 1
Bedroom 2
Bedroom 3
Bathroom
ANNEXE
Living Room
Bedroom 1
Bedroom 2
Kitchen/Dining Room
Utility Room

Car Port

Parking

Ample parking.

Outside

Set amidst glorious Cornish countryside, the grounds of this property are a true highlight. The former tennis court has been thoughtfully repurposed into a productive vegetable garden, complete with raised beds and a tranquil seating area beneath a timber pergola — ideal for al fresco dining or a morning coffee in the shade. The front of the house enjoys a well-kept lawn bordered by mature planting, while a second, more private lawn area to the rear offers further space for outdoor relaxation or play. A charming walled garden adds both character and shelter, making it a perfect spot for growing flowers or creating a peaceful retreat. With uninterrupted views stretching across rolling farmland towards St Michaels Mount, this outdoor space offers a perfect blend of beauty, privacy, and potential — an idyllic setting for country living.

Services

Private water via a bore hole. Private sewerage. Mains electricity.

Barn

Our clients have advised that the barn had a grant of conditional planning permission for conversion to form self contained accommodation linked to the main dwelling which has now lapsed. Information can be found on the Cornwall Council Planning Portal under reference number PA22/00276.

Rights of Way

Our clients have advised that there is a public footpath which runs to centre of the lawn.

Solar Panels

Our clients have advised that the solar panels are owned.

Planning Information

Our clients have advised that there is lapsed planning permission on the barn. Information can be found on the Cornwall Council Planning Portal under reference number PA22/00276

Council Tax Band- D

What3Words

///movies.motivator.fruits

Anti Money Laundering Regulations – Purchasers

It is a legal requirement that we receive verified ID from all buyers before a sale can be instructed. We will inform you of the process once your offer has been accepted.

Proof of Finances

Before agreeing a sale, we will require proof of your financial ability to purchase. We will inform you of what we require prior to agreeing a sale.

Broadband & Mobile Phone Coverage

To check the broadband coverage for this property please visit https://www.openreach.com/fibre-broadband. To check mobile phone coverage please visit https://checker.ofcom.org.uk/


Location


Floorplan

Floorplan

EPC

EPC for Nr St Erth, Farmhouse, Annexe and Outbuilding

Similar Properties

Ideal spacious family home, Hayle
Sold STC

Ideal spacious family home, Hayle

4 Bed Detached house Sold STC
Guide price Guide Price £449,950
Hayle, Double fronted home moments from town
For Sale

Hayle, Double fronted home moments from town

4 Bed Terraced House For Sale
Guide price Guide Price £450,000
Connor Downs, Spacious family home
For Sale

Connor Downs, Spacious family home

4 Bed Detached house For Sale
Guide price Guide Price £375,000